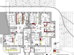
Bezeichnung
Wohnung 2 - Ergeschoss Rechts
Gesamtwohnfläche
98,07 m²
Beschreibung
- komplett renoviert
- Parkplätze am Haus vorhanden
- Bezugsfertig ab Januar 2013
- Energetische Sanierung mit:
- Kunststofffenster mit 3-Fachverglasung und Schallschutz
- neue Heizung
- kontrollierte Wohnraumbelüftung
- Laminat- und Fliesenböden
